
Lokal użytkowy, Sienkiewicza 11, parter, ok. 50m2
Do wynajęcia lokal użytkowy na parterze kamienicy przy ul. Sienkiewicza 11 w Bydgoszczy. Dwie witryny przy chodniku. Bardzo dobra lokalizacja na wszelką działalność, lokal znajduje się przy bardzo ruchliwym skrzyżowaniu ulic: Sienkiewicza, Lipowa, Zduny.
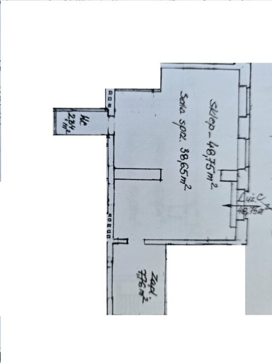
Lokal składa się z jednego pomieszczenia głównego, jednego pomieszczenia magazynowego/użytkowego oraz z wc.
Brak kaucji przy wynajęciu lokalu.
Lokal może wymagać odświeżenia, przystosowania we własnym zakresie do rodzaju prowadzonej działalności.
Ogrzewanie elektryczne. (Możliwość podłączenia do centralnego ogrzewania w budynku. Dodatkowo ok. 600zł/miesięcznie przez okres całego roku)
2460zł brutto / miesięcznie + woda, śmieci, prąd.
Oferta na wyłączność. Tylko w naszym biurze.
Biuro nieruchomości MASS.